Résidence du Domaine de La Vignette
Chemin des Clos 49 à Ecublens
Dernier appartement en rez-de-chaussée avec un grand jardin périphérique orienté Sud-Est avec le soleil dans le jardin jusqu'au soir. Surface nette intérieure murs de 108 m2. Je vous laisse le soin de lire le texte ci-dessous afin de mieux comprendre la philosophie du projet.Dans un parc de 18'000 m2 situé au sud de la Commune d'Ecublens, côté Saint-Sulpice à proximité immédiate de l’EPFL. Le Domaine de La Vignette est une réalisation de neuf immeubles composée d’appartements de trois et quatre pièces. Les constructions n'ont qu'un étage sur rez-de-chaussée. Les trois immeubles du haut (A B C) sont dédiés à la location, les six autres (D à I) à la propriété par étage. L'ouverture du chantier a eu lieu le 11 octobre 2024. La qualité de la construction est exceptionnelle en terme de matériaux de construction ainsi que pour les finitions intérieures. Une attention particulière a été portée aux aménagements extérieurs. Le parc contient plus de septante arbres majeurs ainsi que de nombreuses plantations indigènes. La philosophie du projet étant d'habiter dans un lieu où la nature environnante ainsi que les grands arbres vous confèrent de la quiétude. Les places de parc se trouvent toutes en sous-sol avec accès direct à chaque immeuble. Un local communautaire de huitante mètres carrés est mis à disposition des résidents pour des activités diverses. La production d'énergie est réalisée pour chaque immeuble à l'aide d'une pompe à chaleur géothermique haut de gamme de marque Stiebel Eltron, ainsi que par des panneaux thermiques qui viennent soulager, surtout en été, la pompe à chaleur ainsi que les ressources naturelles du terrain. Un système de simple flux optimise la qualité de l’air dans les appartements. La chaleur qui en est extraite est redirigée vers la pompe à chaleur. La construction est labellisée « Minergie ». Les constructions bénéficient également du système « RCP » regroupement de la consommation propre, ce qui signifie que l'électricité produite est en premier lieu utilisée par les parties communes puis par les parties privées avant d'être redirigée vers le réseau. Un système de Free-Cooling, « rafraîchissement des appartements en été » vient compléter les nombreux avantages de cette réalisation.Je vous remercie pour votre lecture et vous souhaite une belle journée.Dominique Baldi
Résidence « Green Park »
1260 Nyon
Résidence « Green Park ». Nouvelle promotion de quatorze appartements, composée de onze 4 1/2 pièces, d'un 5 1/2 pièces et deux 2 1/2 pièces. Située à Nyon, cette nouvelle réalisation va prochainement être commercialisée sous la forme d'un droit distinct et permanent très bien établi et qui permettra l'accès à la propriété à un plus grand nombre d'intéressés. Le montant des coûts cumulés, tels qu'intérêts hypothécaires, la rente du droit distinct et permanent ainsi que les charges de copropriété par étages seront inférieures à un loyer actuel à situation équivalente. Le projet est exceptionnel de par sa qualité et son emplacement. Dans un écrin de verdure, au calme absolu et à cinq minutes à pied de la gare CFF. Je vous souhaite une belle journée. Dominique Baldi
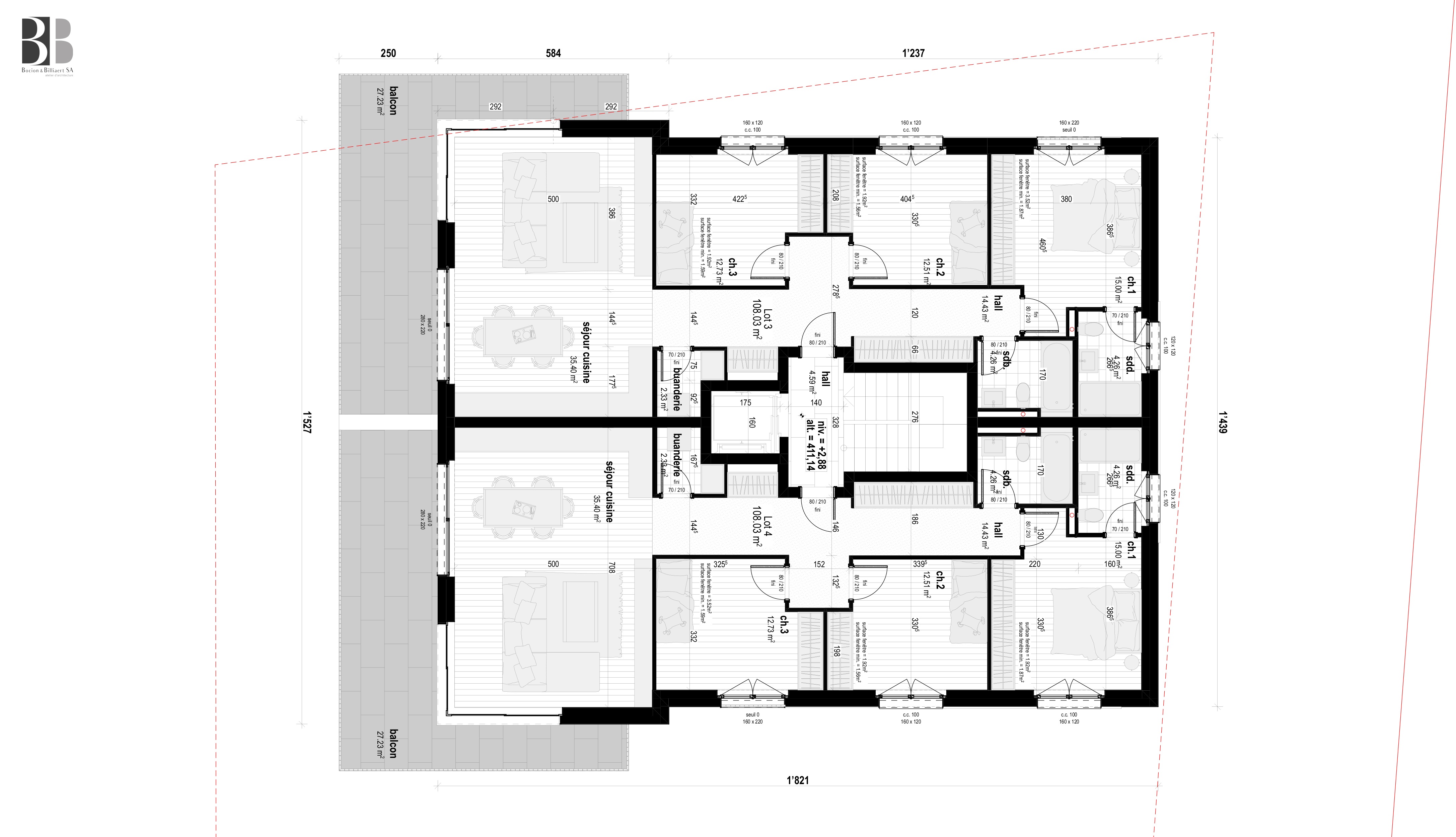
La Résidence « Les Pins »
Chemin de Plaisance 6 à Eccublens
La Résidence « Les Pins » à Ecublens est une nouvelle réalisation de quatre appartements de 4 1/2 pièces chacun, d'une surface brute intérieure murs de 108 m2. Chaque appartement bénéfice d’un grand balcon ou d’un beau jardin-terrasse. Située sur la Commune d'Ecublens au chemin de Plaisance 6. A cinq minutes à pied de l'EPFL et dix minutes du TSOL. Elle se trouve sur le haut de la colline à dix minutes à pied de Saint-Sulpice, dans un endroit extrêmement calme, intime et ensoleillé. La qualité du projet sera soignée dans tous ses détails. Elle est labellisée Minergie. Nous allons certainement être publié pour l’enquête publique dans le courant du mois de mai. Je me permettrai de vous en dire plus le moment venu. Je vous souhaite en attendant une belle journée. Dominique Baldi
Résidence « Luminaria »
1024 Ecublens
La Résidence « Luminaria » à Ecublens est une nouvelle réalisation de quatre appartements de 4 1/2 pièces chacun. Tous les appartements bénéficient d’une surface brute intérieure murs de 110 m2, ainsi que d’un beau balcon ou d’un grand jardin-terrasse. Située sur la Commune d'Ecublens, sur le haut de la colline entre le chemin de la Dent d’Oche et le chemin de Plaisance . A cinq minutes à pied de l'EPFL, dix du TSOL et dix de Saint-Sulpice. Elle se trouve dans un endroit extrêmement calme, intime et ensoleillé. La qualité du projet sera soignée dans tous ses détails. Elle est labellisée Minergie. Nous venons de déposer le dossier à la Commune pour la mise à l’enquête publique. Je me permettrai de vous en dire plus une fois cette étape franchie. Je vous souhaite en attendant une belle journée. À tout bientôt. Dominique Baldi
